



Havmarken 31, 5500 Middelfart
3. etape udbydes til salg i attraktiv udstykning
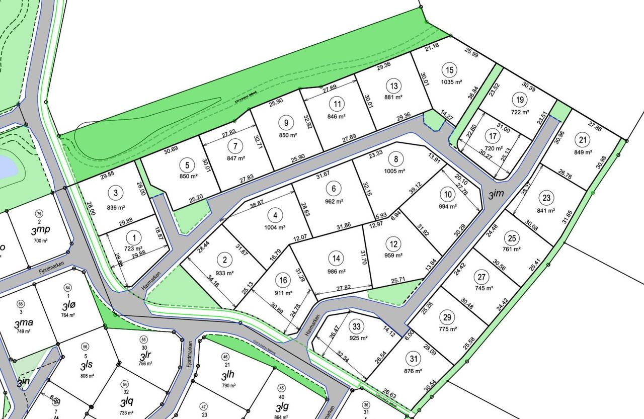
Nu igangsættes salget af 3. etape i den attraktive og efterspurgte udstykning ved Skrillingegaard. Den nye
udstykning har taget form i det sydøstlige Middelfart, tæt på Lillebælt, Skrillinge Strand, og Middelfart Golf
og Marina. Skrillingegaard er navnet på Middelfarts nye boligområde, der ligger centralt i forhold til både
skole og pasningsmuligheder, by- og kulturliv, samt selvfølgelig natur og vand. Ligeledes er der nem
adgang til motorvej E45, og området er oplagt for pendlere mod Jylland eller mod Odense.
Én af Skrillingegaards store forcer som ny bydel er omgivelserne. Naturen, de mange udendørs aktiviteter
og ikke mindst vandet. For at dyrke netop disse kvaliteter bygges bydelen op omkring åbne, grønne kiler,
der giver optimale muligheder for udsyn mod Lillebælt, Fænø og fra de højeste arealer Gamborg Fjord.
De grønne kiler giver ikke bare fornemmelsen af plads og højt til loftet, de kommer også til at danne
rammen om hverdagens rekreative oplevelser for både boligområdets og nærområdets beboere. Fra
Skrillingegaards grønne områder vil der komme stiforbindelser til de omkringliggende boligområder og
de naturskønne arealer ved kysten.
Sælger af udstykningen har lagt ekstraordinært mange penge i at gøre denne udstykning til Middelfarts
absolut mest attraktive udstykning, med store grønne arealer, stier og generelt god luft mellem villaerne.
Her er med andre ord tale om attraktive parcelhusgrunde, hvilket afspejler sig i den store interesse der er
for området.
Nu igangsættes salget af 3. etape i den attraktive og efterspurgte udstykning ved Skrillingegaard. Den nye
udstykning har taget form i det sydøstlige Middelfart, tæt på Lillebælt, Skrillinge Strand, og Middelfart Golf
og Marina. Skrillingegaard er navnet på Middelfarts nye boligområde, der ligger centralt i forhold til både
skole og pasningsmuligheder, by- og kulturliv, samt selvfølgelig natur og vand. Ligeledes er der nem
adgang til motorvej E45, og området er oplagt for pendlere mod Jylland eller mod Odense.
Én af Skrillingegaards store forcer som ny bydel er omgivelserne. Naturen, de mange udendørs aktiviteter
og ikke mindst vandet. For at dyrke netop disse kvaliteter bygges bydelen op omkring åbne, grønne kiler,
der giver optimale muligheder for udsyn mod Lillebælt, Fænø og fra de højeste arealer Gamborg Fjord.
De grønne kiler giver ikke bare fornemmelsen af plads og højt til loftet, de kommer også til at danne
rammen om hverdagens rekreative oplevelser for både boligområdets og nærområdets beboere. Fra
Skrillingegaards grønne områder vil der komme stiforbindelser til de omkringliggende boligområder og
de naturskønne arealer ved kysten.
Sælger af udstykningen har lagt ekstraordinært mange penge i at gøre denne udstykning til Middelfarts
absolut mest attraktive udstykning, med store grønne arealer, stier og generelt god luft mellem villaerne.
Her er med andre ord tale om attraktive parcelhusgrunde, hvilket afspejler sig i den store interesse der er
for området.
Økonomi
Pris
1.295.000 kr.Ejerudgifter pr. md.
929 kr.Mette Højer Hinnerskov
Indehaver/Ejendomsmægler MDE Køberrådgiver m/ Tryghedsmærke